|
五甲家樂福店(凱璿凱碩不動產有限公司)
07-7615999
|
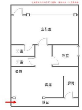
| 鄰科工館一層一戶文青風邊間2樓美寓 | 物件編號:1737733 |
物件特色
|
|
|||||||||||||||||||||||||||||||||||||||||||||
捷運站牌 |
市場 |
學區 |
公園 |
商圈 |
| 樹德家商站 (734 公尺) 科工館站 (904 公尺) |
果菜市場 | 市立正興國中,市立民族國小 |















