|
五甲家樂福店(凱璿凱碩不動產有限公司)
07-7615999
|
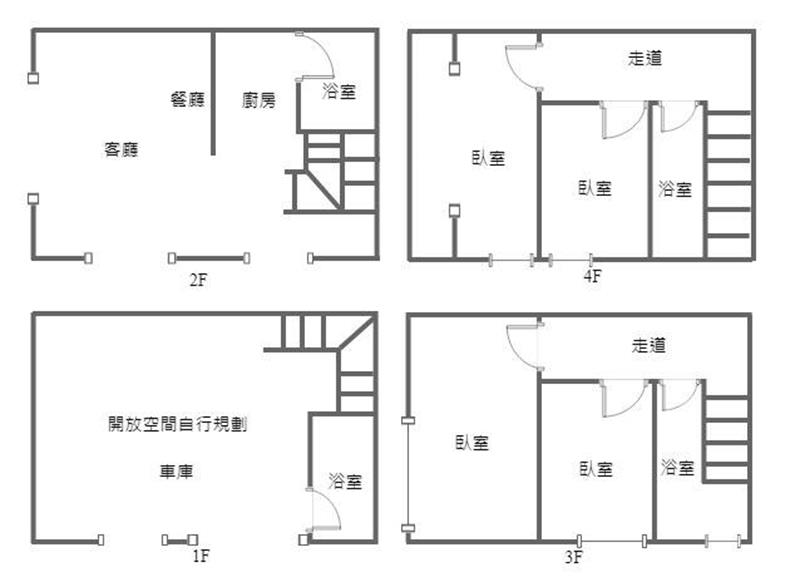
| 鄰瑞隆商圈輕軌站面寬邊間翻修美透天 | 物件編號:1789433 |
物件特色
|
|
|||||||||||||||||||||||||||||||||||||||||||||
捷運站牌 |
市場 |
學區 |
公園 |
商圈 |
| R6凱旋站 (1555 公尺) 籬仔內站 (285 公尺) 凱旋瑞田站 (986 公尺) 凱旋二聖站 (857 公尺) 輕軌機廠站 (432 公尺) |
崗山仔市場 | 市立瑞祥國小,瑞祥國中 |














