|
總圖凱璿店(凱璿不動產事業股份有限公司亞灣區分公司)
07-5361688
|
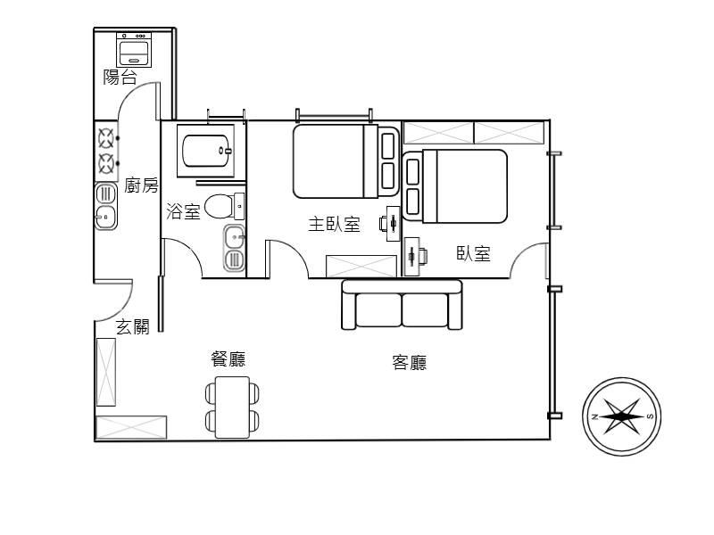
| 橋頭新市鎮★中鋼欣橋之心★質感兩房車位 | 物件編號:1778474 |
物件特色
|
|
|||||||||||||||||||||||||||||||||||||||||||||
捷運站牌 |
市場 |
學區 |
公園 |
商圈 |
| R22青埔站 (1431 公尺) |
橋頭市場 | 市立甲圍國小,市立橋頭國中 | 都會公園 |
















