楠梓土庫店(凱璿不動產事業股份有限公司-楠梓分公司)
07-3515353
中洲路-全新未住電梯雙車庫墅
物件編號:
1781567
1588
萬
透天
3
房
2
廳
3
衛
物件特色
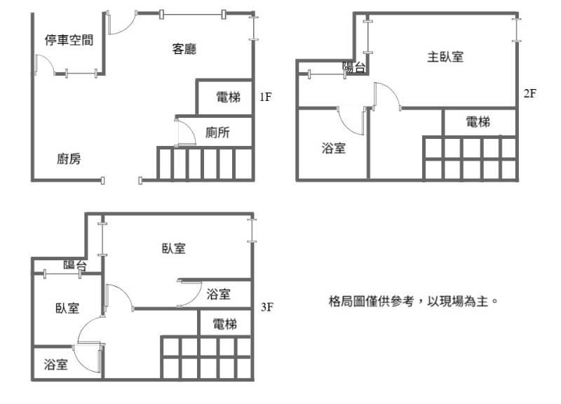
◎車庫透天 門前可停車 ◎全新未住 ◎位處旗山鬧中取靜地段 ◎整層主臥、採光通風佳、傳統方正透天格局 ◎一樓車庫客廳廚房,二樓主臥,三樓兩間次臥,頂樓屋突+曬衣區。
地址
旗山區中洲路
建物登記
83.87
坪
附屬建物
4.02 坪
公共設施
0 坪
停車場
地下室
分項面積主建物
79.84 坪
土地登記總坪數
49.6 坪
管理費
元/每月
車位
無/
座向
屋齡
1.5 年
樓高/樓別
3 /1-3
類別
住家
外牆建材
捷運站牌
市場
學區
公園
商圈
市立溪洲國小,市立大洲國中