|
陽光美術店(凱璿品勝不動產有限公司)
07-5531717
|
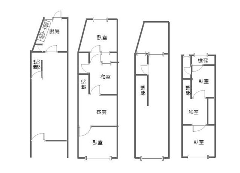
| 臨美術館 台鐵輕軌站※綠園道旁10米街大透店 | 物件編號:0482112 |
物件特色
|
|
|||||||||||||||||||||||||||||||||||||||||||||
捷運站牌 |
市場 |
學區 |
公園 |
商圈 |
| C21美術館站 (951 公尺) 鼓山站 (915 公尺) 馬卡道站 (371 公尺) 臺鐵美術館站 (304 公尺) 內惟藝術中心站 (645 公尺) |
國泰市場 | 市立九如國小,鼓山國中 | 美術館 |
















