巨蛋凱璿店(凱璿不動產事業股份有限公司北高雄分公司)
07-3437000
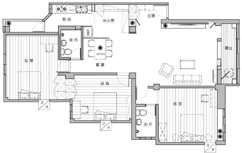
明誠中學設計師的家/溫馨大坪數 / 3房
物件編號:
0982419
698
萬
公寓
3
房
2
廳
2
衛
物件特色
◎設計師的家,省去裝修費/馬上住 ◎室內大坪數33坪/大客廳/大三房 採光通風 ◎近美術館 /凹子底森林公園/巨蛋商圈! ◎近瑞豐夜市/明誠中學生活機能便利讚 ◎出得繁華,入得寧靜,居住安靜無車流聲又大空間舒適
地址
鼓山區華寧路
建物登記
33.11
坪
附屬建物
公共設施
停車場
地下室
分項面積主建物
33.11 坪
土地登記總坪數
17.87 坪
管理費
元/每月
車位
無/
座向
座西南 朝東北
屋齡
47.3 年
樓高/樓別
5 /3
類別
住家
外牆建材
捷運站牌
市場
學區
公園
商圈
華豐市場
市立勝利國小,市立大義國中