|
中華明誠店(凱璿不動產事業股份有限公司中華分公司)
07-5520006
|
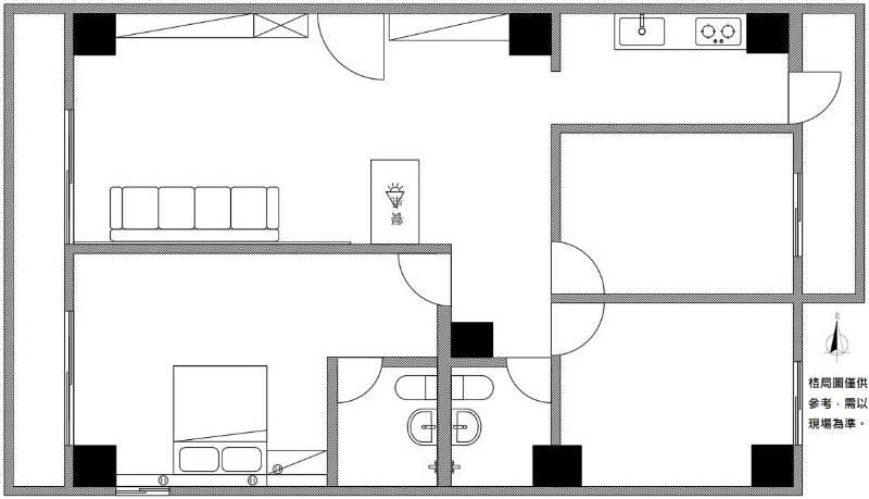
| 台積電世運體育場蔚藍海岸大美3房 | 物件編號:1660813 |
物件特色
|
|
|||||||||||||||||||||||||||||||||||||||||||||
捷運站牌 |
市場 |
學區 |
公園 |
商圈 |
| R18油廠國小站 (927 公尺) |
莒光市場 | 市立莒光國小,市立右昌國中 | 世運體育場 |
















