孟子自由店(凱璿發貴不動產有限公司)
07-3506161
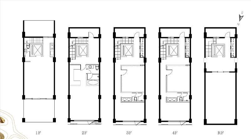
⭐禾承建設⭐重金誠意首推⭐燙金電梯店墅A2戶⭐
物件編號:
0012358
3858
萬
透天
5
房
2
廳
4
衛
物件特色
💖豪奢上選建材.電梯5房大道燙金店墅 💖林內、波蘭amica廚具精品 採用日系血統廚具 💖河堤綠廊第一排,中安大道上電梯大店墅 💖近SKM Park草衙購物中心 💖小港機場、國門特區,接軌世界跨越國境一站通 💖近88接軌國道南來北往超便利
地址
小港區中安路
建物登記
87.12
坪
附屬建物
7.53 坪
公共設施
停車場
地下室
分項面積主建物
79.59 坪
土地登記總坪數
22.99 坪
管理費
元/每月
車位
無/
座向
屋齡
未滿一年
樓高/樓別
4 /1-4
類別
住家
外牆建材
捷運站牌
市場
學區
公園
商圈
全聯
市立桂林國小,市立明義國中
桂林公園