左營重信華夏店(凱璿超越不動產有限公司)
07-3431010
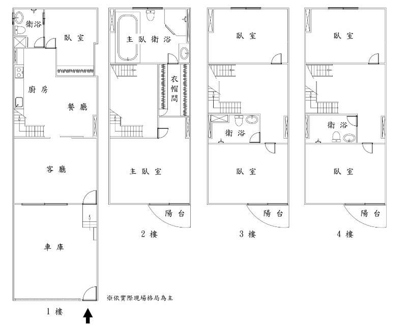
仁武八卦寮臨路傳統格局車墅(不淹水)
物件編號:
0089896
1988
萬
透天
6
房
2
廳
4
衛
物件特色
近國道1.10、距左營高鐵10分鐘車程,交通超便捷 全聯.寶雅.星巴克生活超便利 活巷進出/鬧中取靜,區域地勢高不淹水 一樓為客餐廳還有孝親房 屋主五年前翻修衛浴.地板更新
地址
仁武區永新三街
建物登記
57
坪
附屬建物
11.18 坪
公共設施
0 坪
停車場
地下室
分項面積主建物
45.81 坪
土地登記總坪數
24.76 坪
管理費
元/每月
車位
無/
座向
座西南 朝東北
屋齡
22.8 年
樓高/樓別
4 /1-4
類別
住家
外牆建材
捷運站牌
市場
學區
公園
商圈
全聯
市立八卦國小,市立大灣國中