文山文衡店(凱璿不動產事業股份有限公司文山分公司)
07-7670555
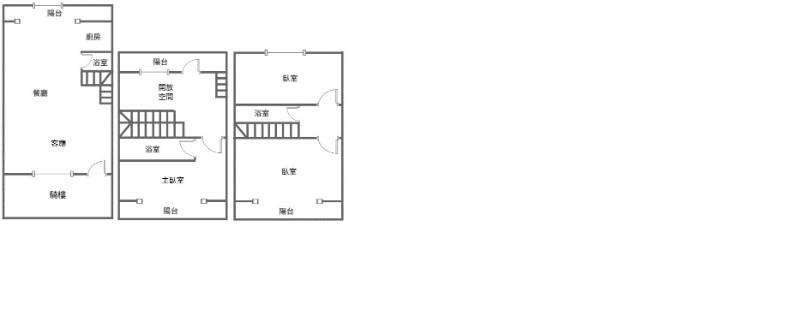
全新翻修三樓透天 潮州鬧區稀有釋出
物件編號:
1805824
1180
萬
透天
3
房
3
廳
3
衛
物件特色
◎屋況新穎|全屋翻新增建至三樓,水電衛浴全更新 ◎商圈便利|步行可達延平商圈、中山路商圈,餐飲採買超方便 ◎交通順暢|近潮州火車站、客運總站、潮州交流道
地址
潮州鎮北平路
建物登記
31.94
坪
附屬建物
公共設施
停車場
地下室
分項面積主建物
31.94 坪
土地登記總坪數
25.12 坪
管理費
元/每月
車位
無/
座向
座東南 朝西北
屋齡
46.3 年
樓高/樓別
2 /1-2
類別
住家
外牆建材
捷運站牌
市場
學區
公園
商圈
傳統市場
縣立潮州國小,縣立潮州國中
社區公園