|
農十六凱璿店(凱璿不動產事業股份有限公司博愛分公司)
07-5559889
|
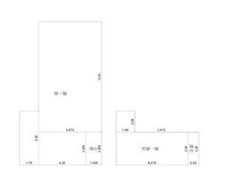
| 高醫商圈近捷運站面寬5.6米黃金收租自用置產店面 | 物件編號:1848256 |
物件特色
|
|
|||||||||||||||||||||||||||||||||||||||||||||
捷運站牌 |
市場 |
學區 |
公園 |
商圈 |
| R12後驛站 (875 公尺) 大順民族站 (943 公尺) 大順鼎山站 (976 公尺) |
果菜批發市場 | 市立愛國國小,市立三民國中 | 同盟公園 |




