大樂河堤店(雄赫不動產有限公司)
07-3478777
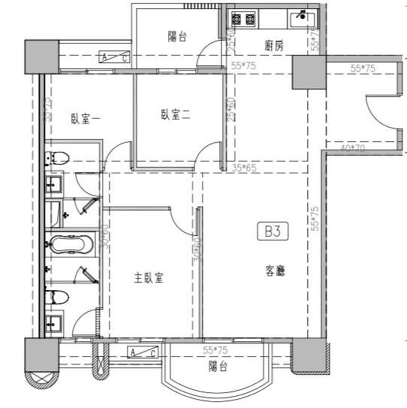
文山特區-聯上WE面公園景觀三房平車
物件編號:
1796685
2280
萬
大樓
3
房
2
廳
2
衛
物件特色
◎1.正文山特區、超精華地段 ◎2.面對公園第一排、永久性棟距 ◎3.戶戶平面車位 ◎4.格局方正採光通風佳 ◎5.南北座向、冬暖夏涼 ◎6.3房2廳2衛全新未住 ◎7.近黃線捷運站、交通便利 ◎8.預留充電樁、電動車友善
地址
鳳山區文鳳路
建物登記
50.64
坪
附屬建物
4.02 坪
公共設施
15.52 坪
停車場
7.07 坪
地下室
分項面積主建物
24.03 坪
土地登記總坪數
6.76 坪
管理費
元/每月
車位
公設車位/坡道/平面
座向
座南 朝北
屋齡
1.7 年
樓高/樓別
15 /13
類別
住家
外牆建材
捷運站牌
市場
學區
公園
商圈
市立文德國小,市立文山高中國中部