|
巨蛋凱璿店(凱璿不動產事業股份有限公司北高雄分公司)
07-3437000
|
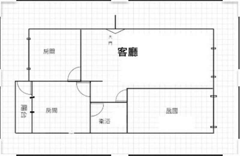
| 鹽埕埔捷運/輕軌/亞灣/駁二/壽山公園大3房 | 物件編號:1762004 |
物件特色
|
|
|||||||||||||||||||||||||||||||||||||||||||||
捷運站牌 |
市場 |
學區 |
公園 |
商圈 |
| O2鹽埕埔站 (443 公尺) 駁二大義站 (888 公尺) 駁二蓬萊站 (565 公尺) 哈瑪星站 (618 公尺) 壽山公園站 (187 公尺) 文武聖殿站 (456 公尺) 哈瑪星站 (733 公尺) |
鹽埕示範市場 | 市立鹽埕國小,市立鹽埕國中 | 壽山公園 |













