十全博愛店(凱璿凱樺不動產事業有限公司)
07-3131888
後勁捷運站|郡都科楠|全新未住三房平車
物件編號:
1866096
1480
萬
大樓
3
房
2
廳
2
衛
物件特色
◎正三房格局,全新未住,可自行規劃裝潢 ◎走路約3分鐘到7-11、麥味登、洗衣店、運動工作室等 ◎交通鄰近雙捷運R20後勁站/R21都會公園站 ◎台積電,輕屋齡投資,自住熱門首選,保值首選 ◎商圈鄰近近後勁夜市、近新楠家樂福、德民商圈、德賢商圈、後勁商圈,周遭生活機能便利
地址
楠梓區金富街
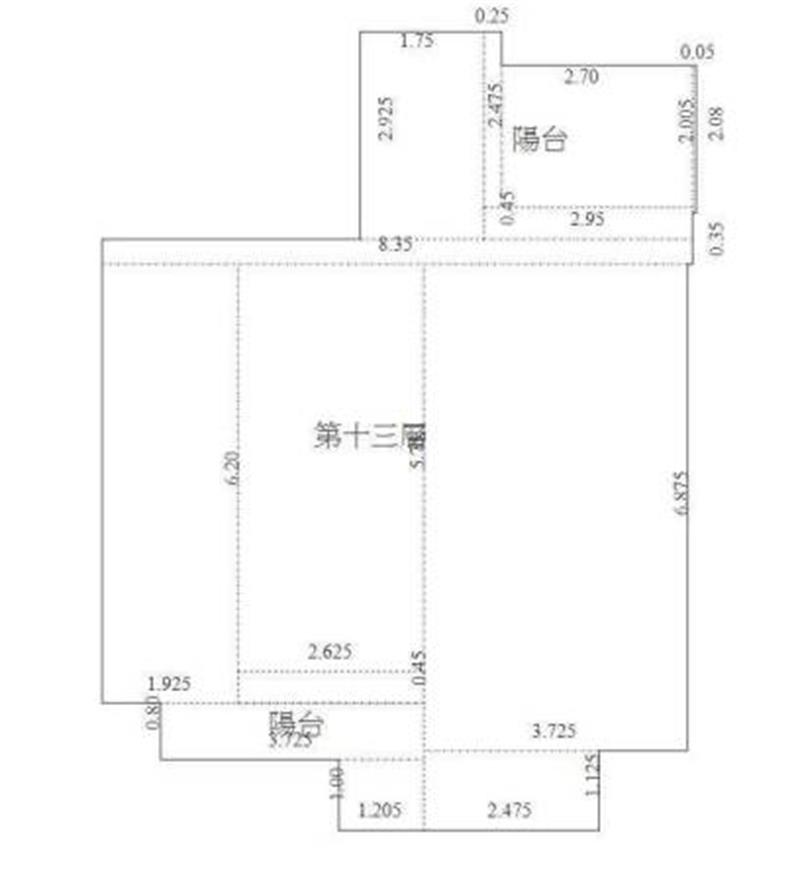
建物登記
42.41
坪
附屬建物
5.02 坪
公共設施
13.45 坪
停車場
5.88 坪
地下室
分項面積主建物
18.05 坪
土地登記總坪數
5.26 坪
管理費
3760 / 月繳 元/每月
車位
公設車位/坡道/平面
座向
屋齡
未滿一年
樓高/樓別
15 /13
類別
住家
外牆建材
捷運站牌
市場
學區
公園
商圈
後勁站 (382 公尺)
都會公園站 (602 公尺)
市立後勁國中,市立後勁國小