|
R13忠言店(凱璿淳鑫不動產有限公司)
07-5576999
|
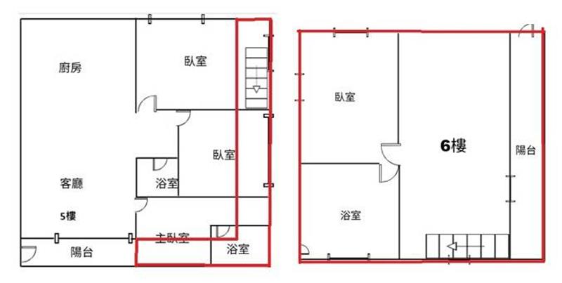
| 科工館旁大坪數好停車5+頂健身公寓 | 物件編號:1832125 |
物件特色
|
|
|||||||||||||||||||||||||||||||||||||||||||||
捷運站牌 |
市場 |
學區 |
公園 |
商圈 |
| 樹德家商站 (762 公尺) 科工館站 (862 公尺) |
市立民族國小,市立正興國中 | 科工館 |
















