農十六凱璿店(凱璿不動產事業股份有限公司博愛分公司)
07-5559889
中庄國中三角窗超大面寬電梯別墅可停多車
物件編號:
1848272
3780
萬
(含車位價)
透天
6
房
2
廳
6
衛
物件特色
◎大寮捷運.中庄稀有釋出電梯車墅 ◎11年新屋四個主臥氣派豪華 ◎近中庄國中小.火車站.圖書館 ◎三角窗大面寬.邊間可停多車 ◎近和發產業園區生活便利 ◎贈裝潢三代同堂最佳選擇
地址
大寮區永安街
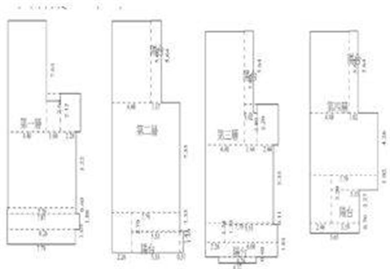
建物登記
126.66
坪
附屬建物
18.89 坪
公共設施
0 坪
停車場
地下室
分項面積主建物
107.77 坪
土地登記總坪數
52.03 坪
管理費
元/每月
車位
私有/車庫
座向
屋齡
11.9 年
樓高/樓別
4 /1-4
類別
住家
外牆建材
捷運站牌
市場
學區
公園
商圈
OT1大寮站 (1972 公尺)
傳統市場
市立中庄國小,市立中庄國中