文化四維店(凱璿冠鈞不動產有限公司)
07-7158777
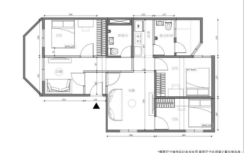
瑞隆商圈翻新質感採光雙陽台大三房
物件編號:
0501207
538
萬
公寓
3
房
2
廳
2
衛
物件特色
①近瑞隆商圈,區域採買交通方便,生活機能成熟 ②一層一戶,戶數少,社區單純 ③頂樓防水已重做,公寓稀有雙陽台物件,房間皆開窗 ④管線已全新整理,廁所防水皆施作完成 ⑤室內採用進口瓷磚,用心整理,屋主誠售
地址
前鎮區瑞隆路
建物登記
24.46
坪
附屬建物
0 坪
公共設施
0 坪
停車場
地下室
分項面積主建物
24.46 坪
土地登記總坪數
9.61 坪
管理費
元/每月
車位
無/
座向
屋齡
45.6 年
樓高/樓別
5 /5
類別
住家
外牆建材
捷運站牌
市場
學區
公園
商圈
輕軌機廠站 (928 公尺)
肉豆公市場
市立瑞豐國小,市立瑞豐國中