益群藍田店(凱璿長虹不動產有限公司)
07-3622555
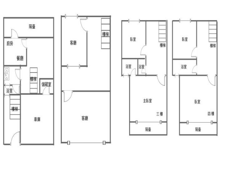
左營捷運高鐵大地坪邊間六房車墅稀有釋出
物件編號:
0035952
3180
萬
透天
6
房
2
廳
4
衛
物件特色
1.邊間建坪76.5,現況六房,35坪大地坪,稀有物件釋出。 2.格局方正,通風採光佳,屋況良好。 3.雙捷運,近公園,崇德商圈、自由市場及健身房等,生活機能完整。 4.新民國小,左營國中,學區完整走路上學。 5.五分鐘上國道及台17線,南北往來便利。 6.左營區寸土寸金,有地斯有財。
地址
左營區文自路
建物登記
86.39
坪
附屬建物
9.88 坪
公共設施
0 坪
停車場
地下室
分項面積主建物
76.5 坪
土地登記總坪數
35.27 坪
管理費
元/每月
車位
無/
座向
屋齡
30 年
樓高/樓別
4 /1-4
類別
住家
外牆建材
捷運站牌
市場
學區
公園
商圈
R15生態園區站 (588 公尺)
自由市場
市立新民國小,市立左營國中
博愛公園