高大家樂福(凱璿誠心不動產有限公司)
07-3615798
※仁武區仁雄商圈-鬧中取靜-透天正四樓車墅
物件編號:
0482293
1780
萬
透天
4
房
2
廳
3.5
衛
物件特色
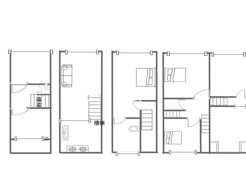
1.正四樓車墅,一樓停車空間和孝親房 2.室內含有四房,採光通風良好,屋況佳 3.五樓加蓋增建空間利用性大 4.社區型邊間透天,鬧中取靜、鄰居單純 5.鄰仁雄商圈,商家林立,採買方便生活 6.學區完整,國一國十交通往來便捷
地址
仁武區赤貴街
建物登記
58.73
坪
附屬建物
9.4 坪
公共設施
停車場
地下室
分項面積主建物
49.33 坪
土地登記總坪數
25.69 坪
管理費
元/每月
車位
無/
座向
屋齡
20.3 年
樓高/樓別
4 /1-4
類別
住家
外牆建材
捷運站牌
市場
學區
公園
商圈
登發市場
市立登發國小,市立大灣國中