大樂河堤店(雄赫不動產有限公司)
07-3478777
屏東內埔市區大地坪全新未住雙車墅
物件編號:
1025369
1598
萬
透天
4
房
3
廳
3
衛
物件特色
◎近內埔市區 生活機能方便 ◎附近有寶雅 燦坤 全聯 ◎星巴克 各式美食 餐廳林立 ◎離美和科技大學很近 ◎周圍都是新蓋的透天車墅 ◎周圍都是新蓋的透天車墅 ◎全新未曾居住過 可停3部車 ◎面寬格局室內空間寬敞
地址
內埔鄉學興路
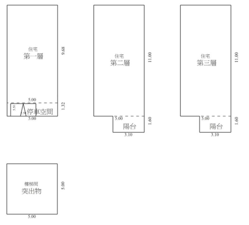
建物登記
60.47
坪
附屬建物
3 坪
公共設施
停車場
地下室
分項面積主建物
57.47 坪
土地登記總坪數
55.55 坪
管理費
元/每月
車位
無/
座向
屋齡
4.2 年
樓高/樓別
3 /1-3
類別
住家
外牆建材
捷運站牌
市場
學區
公園
商圈
縣立內埔國中,縣立內埔國小