文山文衡店(凱璿不動產事業股份有限公司文山分公司)
07-7670555
文山特區旁乙種工業旗艦廠房企業總部品牌觀光工廠 物件編號:1729636
48000 (含車位價) 透天 開放空間
物件特色
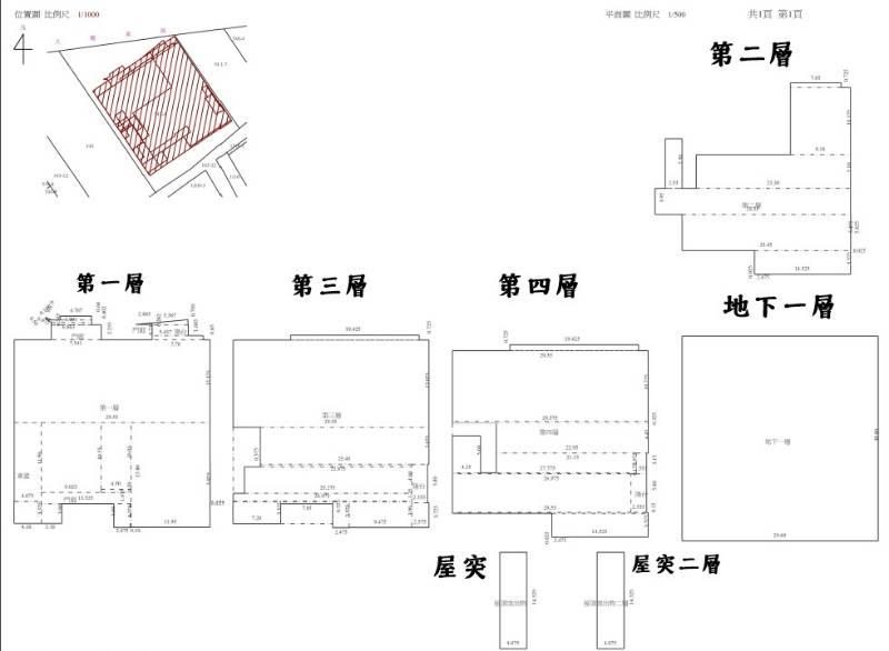
文山特區核心旁,稀有雙面臨路乙種工業基地,全棟合法 C1 工廠使照的新世代企業旗艦廠房,可立即承接製造、研發、展示與倉儲整合營運。 二、核心規格(決策關鍵數據) 建物:RC 結構|B1+4F|1,198.67 坪|屋齡約 7 年 使用執照:全棟 C1 工廠用途(非混用) 樓高:1F 約 4.0m|2–4F 約 4.5m 建蔽 / 容積:63.37% / 199.97%(尚有發展彈性) 停車與動線:前庭停車|後巷卸貨平台 垂直動線:雙直通樓梯|30 人無障礙電梯 消防與機電:自動灑水+泡沫系統|五大管線齊備 綠能配置:屋頂太陽能+綠屋頂設計 三、營運優勢(企業端真正買單的理由) ✅ 合法性與合規效率 全棟工廠使照 → 可直接工廠登記、銀行授信、營運導入 非用途混用、非違章量體 → 法務與風控友善 ✅ 動線效率與擴充彈性 人流(接待 / 展示)與物流(卸貨 / 出貨)分離 樓板尺度大、空間方正,適合產線、研發、倉儲彈性配置 ✅ 品牌與示範場域價值 現況為成衣品牌工廠並結合產業導覽與公部門參訪 已實際驗證人流承載、消防與動線安全 適合企業品牌形象中心與 ESG 示範基地 四、適合導入產業(已實務驗證可行) ✔ 成衣 / 紡織 / 品牌製造 ✔ 電子電機 / AI 智慧製造 / 研發中心 ✔ 電商物流 / 城市分揀倉 ✔ 企業總部 / 展示參訪型工廠 ※ 實際營運型態依法規及主管機關核定辦理
地址 鳳山區文龍東路
建物登記 1198.66
附屬建物14.76 坪 公共設施0 坪
停車場 地下室
分項面積主建物1183.89 坪
土地登記總坪數406.86 坪
管理費 元/每月
車位 私有/門口
座向 座東南 朝西北
屋齡 7.5 年 樓高/樓別 4 /B1-4
類別 廠房 外牆建材
捷運站牌 市場 學區 公園 商圈