大樂河堤店(雄赫不動產有限公司)
07-3478777
●降價了!空中鳳城◎文華國小旁公寓2樓
物件編號:
AA1025377
598
萬
公寓
3
房
2
廳
2
衛
物件特色
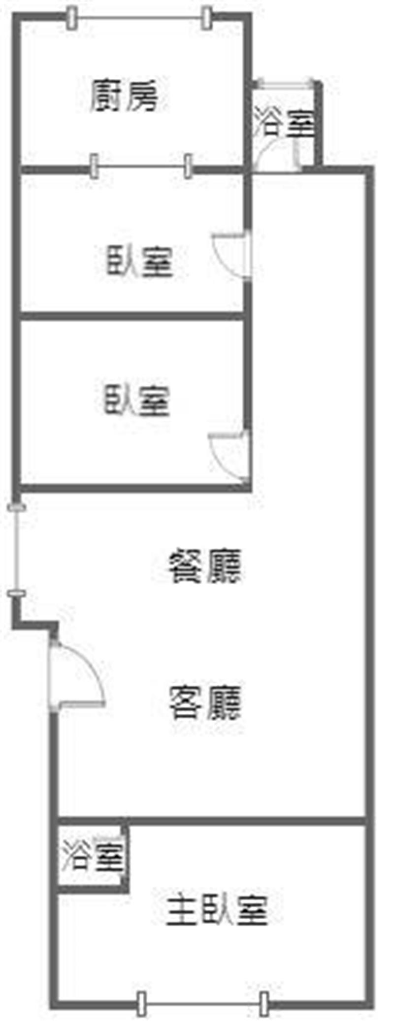
位於文華國小旁,附近有鳳山商工、大全聯賣場、7-11便利店、全國電子等各式商家,生活機能便利。 全屋有翻修過,室內使用坪數大,現況三房使用,並有一大廚房+餐廳,很適合小家庭或收租皆適宜。
地址
鳳山區文昌街
建物登記
20.75
坪
附屬建物
1.81 坪
公共設施
停車場
地下室
分項面積主建物
18.94 坪
土地登記總坪數
6.35 坪
管理費
元/每月
車位
無/
座向
屋齡
43.6 年
樓高/樓別
5 /2
類別
住家
外牆建材
捷運站牌
市場
學區
公園
商圈
市立青年國中,市立文華國小