五甲家樂福店(凱璿凱碩不動產有限公司)
07-7615999
鄰鳳山國中捷運日系侘寂風孝親房透天
物件編號:
1049397
1458
萬
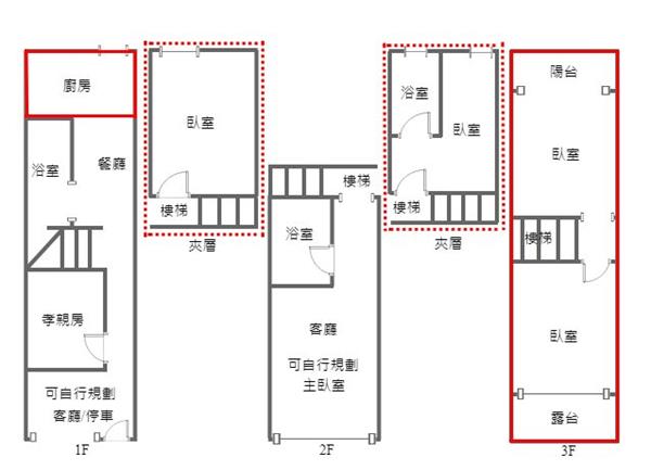
透天
5
房
2
廳
4
衛
物件特色
學區→明星學區鳳山國中。 交通→出門即是鳳山國中捷運站及鄰近未來國道7號交流道,緊扼鳳山、大寮、屏東的交通休閒→鄰近鳳凰山、大東文藝中心、濕地公園、空中鳳城,還有81期重劃區4座特色公園 商圈→鄰近光遠、經武、瑞竹、工協市場…..採買極便利。 老屋的逆齡,屋主特請設計師親自監工,花費數百萬,使用鋼構加強,用心打造日式侘寂風。 客廳採大面窗,一樓設有孝親房,門前方便可停1~2車。 巷子鄰居非常好相處,皆為軍公教公務員退休居多。
地址
鳳山區仁愛路
建物登記
25.21
坪
附屬建物
公共設施
停車場
地下室
分項面積主建物
25.21 坪
土地登記總坪數
16.03 坪
管理費
元/每月
車位
無/
座向
屋齡
52.5 年
樓高/樓別
2 /1-2
類別
住家
外牆建材
捷運站牌
市場
學區
公園
商圈
O14鳳山國中站 (223 公尺)
工協市場
市立鳳山國中,市立中正國小