農16至聖店(凱璿安家不動產有限公司)
07-5583535
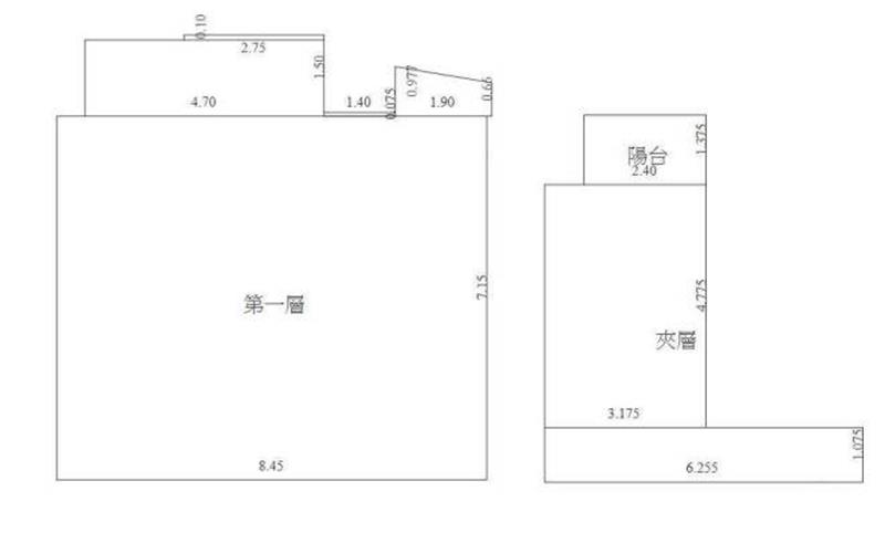
左營高鐵諾金【全新完工】面寬8.45米店面(車位另購)
物件編號:
Y0123072
1631
萬
大樓
0
房
0
廳
1
衛
物件特色
◎近左營高鐵三鐵共構.新光三越.彩虹市集.生活便利.交通機能完善 ◎公設:接待大廳.中庭花園.兒童遊戲室.健身房.閱讀室.KTV ◎大雅廚具.BWT淨水機.SPC石塑隔音地板.安靜舒適.隔音沒煩惱 ◎面寬8.45米店面.夾層好利用.社區336戶.適合工作室.超商.輕食早餐店等…◎本案土地持分與其他建物共同持分.地坪以建商分割後依比例分配坪數
地址
左營區大中二路
建物登記
36.24
坪
附屬建物
0.99 坪
公共設施
7.63 坪
停車場
0 坪
地下室
分項面積主建物
27.61 坪
土地登記總坪數
管理費
元/每月
車位
無/
座向
屋齡
未滿一年
樓高/樓別
15 /1
類別
店面
外牆建材
捷運站牌
市場
學區
公園
商圈
左營站 (502 公尺)
市立屏山國小,市立左營國中