益群藍田店(凱璿長虹不動產有限公司)
07-3622555
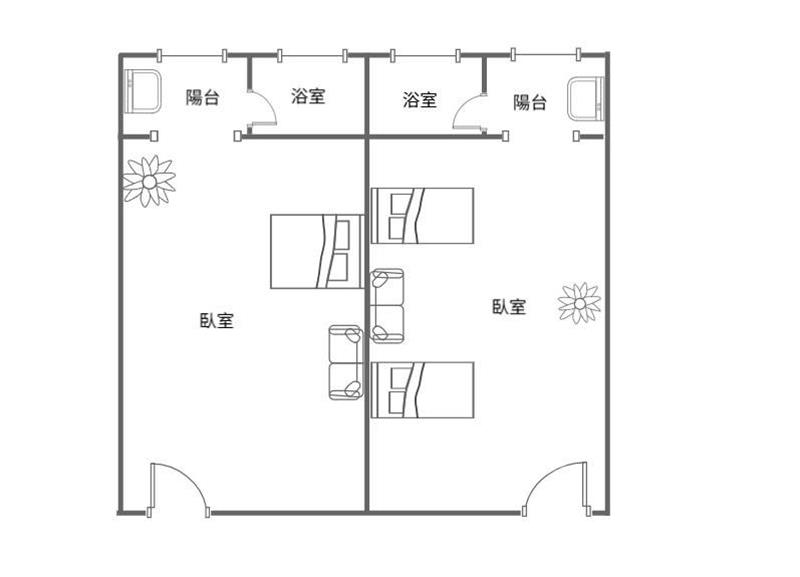
屏科大富翁-旭日館次高樓山景雙套房
物件編號:
0092460
318
萬
華廈
2
房
2
廳
2
衛
物件特色
◎屏東科技大學車程約5分鐘,鄰近內埔商圈 ◎次高樓、採光、通風、視野佳 ◎兩間都有陽台、衛浴有開窗 ◎24小時飯店式社區管理、有管理員、環保室免追垃圾車 ◎公設:健身房、烹飪室、每戶一機車位 ◎目前穩定租金收入、自住、置產都適合
地址
內埔鄉壽比路
建物登記
18.43
坪
附屬建物
1.47 坪
公共設施
6.86 坪
停車場
地下室
分項面積主建物
10.09 坪
土地登記總坪數
5.43 坪
管理費
2000 / 月繳 元/每月
車位
無/
座向
屋齡
9.4 年
樓高/樓別
7 /6
類別
住家
外牆建材
捷運站牌
市場
學區
公園
商圈
內埔市場
縣立內埔國小,縣立內埔國中