十全博愛店(凱璿凱樺不動產事業有限公司)
07-3131888
鳳頂邊間金透天|近陸軍步校
物件編號:
1881725
1860
萬
透天
5
房
2
廳
4
衛
物件特色
◎臨路金店面.適合各行各業 ◎穩定收租中.鄰近陸軍步校 ◎鄰近快速道路.南北往
地址
鳳山區鳳頂路
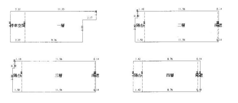
建物登記
72.22
坪
附屬建物
7.32 坪
公共設施
停車場
地下室
分項面積主建物
64.89 坪
土地登記總坪數
25.88 坪
管理費
元/每月
車位
無/
座向
屋齡
21.5 年
樓高/樓別
4 /1-4
類別
住家
外牆建材
捷運站牌
市場
學區
公園
商圈
安中黃昏市場