|
博愛凱璿店(凱璿不動產事業股份有限公司龍華分公司)
07-5577777
|
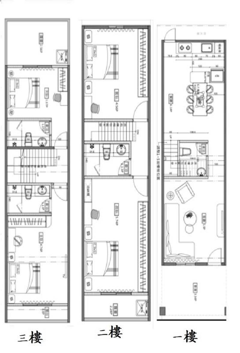
| O13大東捷運站.光遠商圈.翻新溫馨透天 | 物件編號:1835257 |
物件特色
|
|
|||||||||||||||||||||||||||||||||||||||||||||
捷運站牌 |
市場 |
學區 |
公園 |
商圈 |
| 大東站 (400 公尺) 鳳山國中站 (551 公尺) |
公園仔市 | 市立鳳山國中,市立瑞興國小 |














