華夏新莊店(凱璿泊睿不動產事業有限公司)
07-3591515
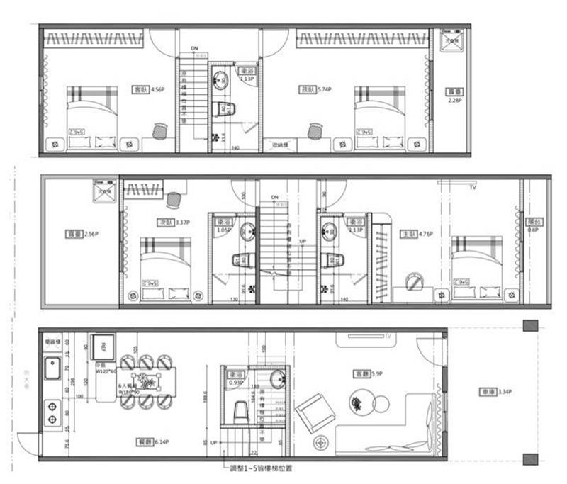
全屋翻新透天丨精美家具裝潢丨鳳山光遠商圈
物件編號:
1852335
1458
萬
透天
4
房
2
廳
4
衛
物件特色
◎全屋整理水電翻新,可立即入住 ◎現況規劃雙套房,日式風格高檔裝潢 ◎恆溫衛浴設備,精美高級廚具 ◎鄰近大東&鳳山國中捷運站,周邊商圈機能完整方便 ◎三樓為增建區域,室內家具均附贈
地址
鳳山區光遠路
建物登記
28.67
坪
附屬建物
0 坪
公共設施
0 坪
停車場
地下室
分項面積主建物
28.67 坪
土地登記總坪數
19.66 坪
管理費
元/每月
車位
無/
座向
座北 朝南
屋齡
52.3 年
樓高/樓別
2 /1-2
類別
店住
外牆建材
捷運站牌
市場
學區
公園
商圈
鳳山第二公有市場
市立瑞興國小,市立鳳山國中