|
農十六凱璿店(凱璿不動產事業股份有限公司博愛分公司)
07-5559889
|
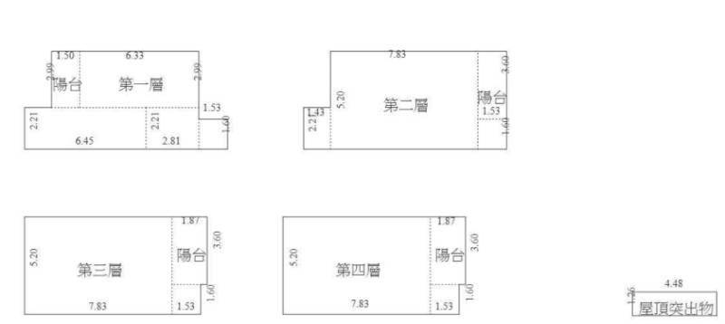
| 土庫商圈|家樂福|天下第一國|雙車墅透天 | 物件編號:1848335 |
物件特色
|
|
|||||||||||||||||||||||||||||||||||||||||||||
捷運站牌 |
市場 |
學區 |
公園 |
商圈 |
| R22青埔站 (989 公尺) |
楠梓第一市場 | 市立楠梓國小,市立楠梓國中 | 創新公園 |
















