|
博愛凱璿店(凱璿不動產事業股份有限公司龍華分公司)
07-5577777
|
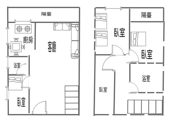
| 信義國小站★屋況好★四房樓中樓美寓 | 物件編號:1046522 |
物件特色
|
|
|||||||||||||||||||||||||||||||||||||||||||||
捷運站牌 |
市場 |
學區 |
公園 |
商圈 |
| O6信義國小站 (275 公尺) 中央公園站 (969 公尺) 美麗島站 (800 公尺) 文化中心站 (873 公尺) |
中正市場 | 新興國中,市立新興國小 |
















