中山凱璿店(凱璿不動產事業股份有限公司)
07-2350000
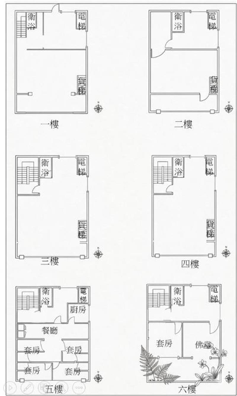
🌟巨蛋商圈企業總部🌟稀有電梯透天店面
物件編號:
1866538
15800
萬
透天 開放式
物件特色
巨蛋商圈.微笑公園.生態園區繁華地段大地坪電梯透天店面 面寬約九米大面寬,土地68坪 每樓層高度至少4.2米,一樓4.5米超霸氣 適合企業總部.倉儲.總裁豪邸.商辦.G3店鋪多用途.有兩部電梯(貨梯和客梯).使漢神巨蛋商圈、微笑公園、生態園區捷運站.國道10號
地址
左營區文自路
建物登記
229.37
坪
附屬建物
16.06 坪
公共設施
停車場
地下室
分項面積主建物
213.31 坪
土地登記總坪數
68.04 坪
管理費
元/每月
車位
無/
座向
座西北 朝東南
屋齡
22.7 年
樓高/樓別
5 /1-5
類別
店面
外牆建材
捷運站牌
市場
學區
公園
商圈
生態園區站 (272 公尺)
市立新莊國小,市立左營國中