孟子自由店(凱璿發貴不動產有限公司)
07-3506161
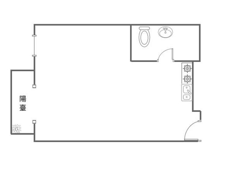
鳳山全新未住【聯上Me悅】中高樓層+車位
物件編號:
0040397
888
萬
大樓
2
房
1
廳
1
衛
物件特色
🌹可隔兩房還有車位,低總價好成家 🌹前方都是透天,永久棟距採光佳 🌹百坪中庭、花園泳池、健身房、KTV等多元公設,飯店宅管理 🌹五甲家樂福車程約五分鐘可達,採買便利 🌹配有固定機車位,規劃預留電動車充電樁安裝 🌹未來黃線Y22在旁,增值可期
地址
鳳山區錦田路
建物登記
24.56
坪
附屬建物
1.69 坪
公共設施
10.17 坪
停車場
地下室
分項面積主建物
12.69 坪
土地登記總坪數
4.14 坪
管理費
2208 / 月繳 元/每月
車位
公設車位/坡道/機械
座向
座東北 朝西南
屋齡
未滿一年
樓高/樓別
15 /9
類別
住家
外牆建材
捷運站牌
市場
學區
公園
商圈
五甲市場
市立五福國小,市立福誠高中國中部
明鳳公園