農十六凱璿店(凱璿不動產事業股份有限公司博愛分公司)
07-5559889
霞海臨路可停3車電梯稀有太子美車墅
物件編號:
1060754
3800
萬
(含車位價)
大樓 依現況
物件特色
稀有臨路電梯 屋齡新 屋況佳 周遭重劃區 未來增值可期 太子雲知名社區 質感佳 知名建商品質好 使用空間大.舒適住宅
地址
仁武區霞海東一街
建物登記
87.88
坪
附屬建物
4.26 坪
公共設施
0 坪
停車場
地下室
分項面積主建物
83.61 坪
土地登記總坪數
33.02 坪
管理費
元/每月
車位
私有/獨立車庫
座向
屋齡
9.7 年
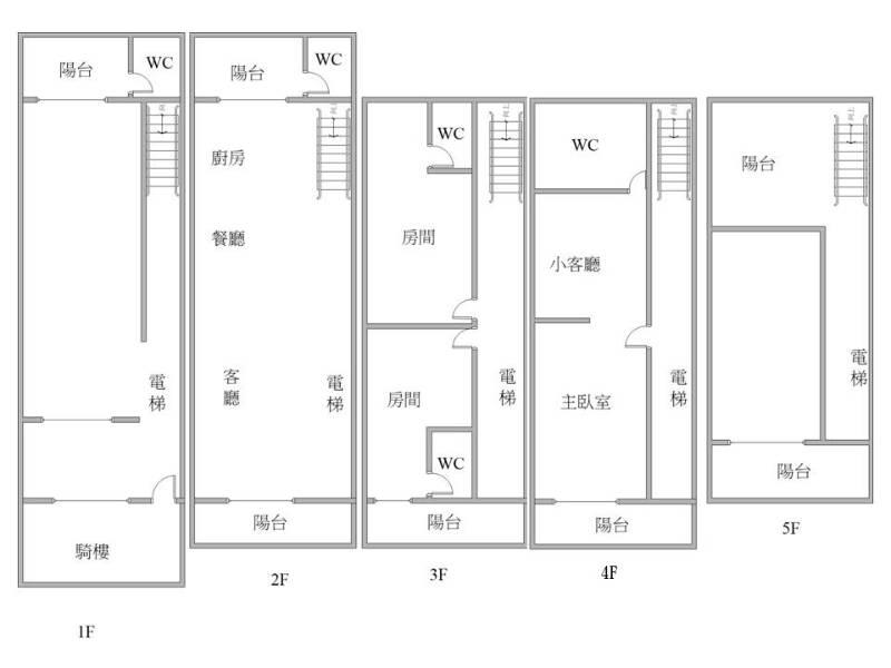
樓高/樓別
4 /1-4
類別
住家
外牆建材
捷運站牌
市場
學區
公園
商圈
市立八卦國小,市立文府國小,市立福山國小,市立文府國中