德賢德惠店(凱璿成家不動產有限公司)
07-3627711
雙捷運旁|大面寬 約15米★臨路醒目三角窗金店面
物件編號:
0170495
1980
萬
大樓
3
房
2
廳
2
衛
物件特色
◎約15米大面寬店面超顯眼 ◎門前路寬12米,停車好方便 ◎500公尺內4間便利商店,地點佳、機能好 ◎距離高雄國際機場僅1公里 ◎5分鐘內可達草衙、小港機場捷運站 ◎緊鄰省道,四通八達超方便
地址
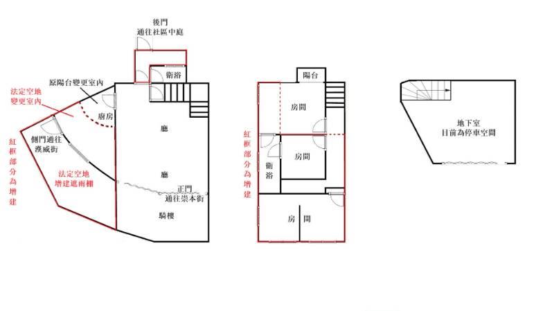
小港區崇本街
建物登記
55.85
坪
附屬建物
1.97 坪
公共設施
11.21 坪
停車場
地下室
分項面積主建物
42.66 坪
土地登記總坪數
12.82 坪
管理費
800 / 月繳 元/每月
車位
無/
座向
屋齡
31.3 年
樓高/樓別
11 /B1-1
類別
店面
外牆建材
捷運站牌
市場
學區
公園
商圈
小港第一市場
市立前鎮國中,市立仁愛國小