文山文衡店(凱璿不動產事業股份有限公司文山分公司)
07-7670555
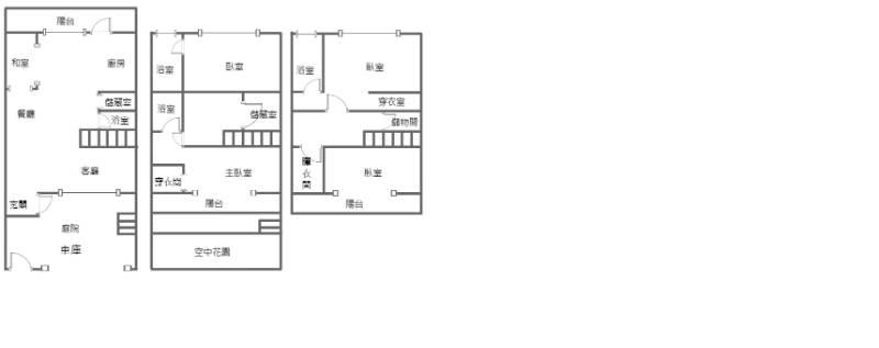
可停4車面寬空中花園3大套房夢幻別墅
物件編號:
1853858
2280
萬
透天
5
房
2
廳
4
衛
物件特色
1.大空間、大尺度,全家人的夢想家園,舒適生活一次擁有! 2.孝親房+電梯預留設計,照顧家人最貼心,幸福生活首選! 3.空中花園,靜享綠意,雙併車位,停車超方便,尊榮首選! 4.面寬6米,氣派大器,83坪大建坪,生活質感全面升級! 5.大坪頂高坪路稀有釋出,獨立大地坪,將花圃改建可停4台車,給家人最好的家!
地址
小港區高坪十一路
建物登記
88.16
坪
附屬建物
5.07 坪
公共設施
0 坪
停車場
地下室
分項面積主建物
83.08 坪
土地登記總坪數
60.88 坪
管理費
元/每月
車位
無/
座向
座東南 朝西北
屋齡
11.6 年
樓高/樓別
3 /1-3
類別
住家
外牆建材
捷運站牌
市場
學區
公園
商圈
傳統市場
市立坪頂國小,市立明義國中